Disassemble / Reassemble
Architecture / Interiors
Residential
Martha’s Vineyard, Massachussetts
In the United States, the new construction of a typical 1,700 sq.ft. wood frame house requires the wood equivalent to one acre of forest. While much emphasis has been placed on the reduction of material waste in new construction and the subsequent reduction in energy consumption during the life of a house, little attention has been paid to the “recycling” of existing houses slated to be demolished.
The disassembly and reassembly of a house has become a rather common and curiously amusing site in certain regions of the United States. The existing house is parcelized on site, loaded on to large flat bed trucks in modules, moved to its new location and reassembled. The “recycling” of houses has become a more common alternative to new construction and an additional source of affordable housing.
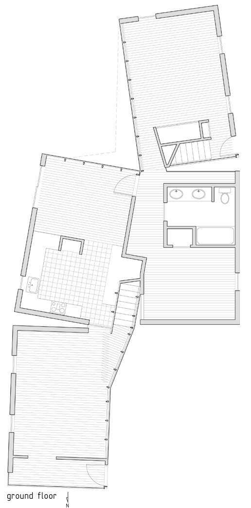
Disassemble / Reassemble investigates the opportunities inherent in the deconstruction and reconstruction of the single detached dwelling. The manipulation of existing modules into new figures that respond specifically to energy consumption, water conservation, site specificity, economic imperatives, and programmatic requirements culminates in the creation of new relevant typologies and provides us with the opportunity to reinterpret conventional house forms.
Architecture / Interiors
Residential
Martha’s Vineyard, Massachussetts
In the United States, the new construction of a typical 1,700 sq.ft. wood frame house requires the wood equivalent to one acre of forest. While much emphasis has been placed on the reduction of material waste in new construction and the subsequent reduction in energy consumption during the life of a house, little attention has been paid to the “recycling” of existing houses slated to be demolished.
The disassembly and reassembly of a house has become a rather common and curiously amusing site in certain regions of the United States. The existing house is parcelized on site, loaded on to large flat bed trucks in modules, moved to its new location and reassembled. The “recycling” of houses has become a more common alternative to new construction and an additional source of affordable housing.
Disassemble / Reassemble investigates the opportunities inherent in the deconstruction and reconstruction of the single detached dwelling. The manipulation of existing modules into new figures that respond specifically to energy consumption, water conservation, site specificity, economic imperatives, and programmatic requirements culminates in the creation of new relevant typologies and provides us with the opportunity to reinterpret conventional house forms.
1123 Broadway, Suite 511, New York, NY 10010 | + (00) 1 212 945 0703 | he@hernandezeli.com